boyard

All-in-one refrigerator-freezer monoblocks Inverter / start-stop

All-in-one cooling-freezing Monoblock Units Inverter

The main advantage of BOYADR monoblock units is their simple and quick installation and commissioning (no refrigeration equipment specialists required).

  • INVERTER Monoblock unit – Smooth regulation of compressor and fan power, ensuring long service life, energy efficiency of more than 25%, low noise level, fast and accurate temperature control ±0.5°C;
  • Cooling temperatures ranging from -30°C to +15°C are ensured by the exceptional versatility of Monoblock units, which is lacking in other similar cooling systems due to technological limitations.
  • Designed for installation both outdoors (no additional covers or other protection required) and indoors, with protection against moisture and dust.
  • BOYARD rotary refrigeration compressors are installed in all Monoblock units models, which have significant technical and economic advantages over more traditional piston compressors.
  • The electronic expansion valve installed in Monoblock units ensures accurate temperature control and energy savings.
  • The air cooler heat exchanger is defrosted with hot steam using a four-way valve, which ensures fast, efficient, and economical defrosting compared to more traditional electric heating elements, which have a short service life.
  • A drainage system has been installed to drain condensate water.

Cooling capacity: 1 – 3 hp.
Refrigerant: R404A/R448A/R449A/R454C, etc. upon request.
Voltage: 1 phase / 220 V / 50~60 Hz.

MONOBLOCK UNIT PROTECTION AND CONTROL SYSTEM

  • System self-diagnosis program: “First start mode” when the Monoblock unit is started for the first time or after the compressor has stopped for more than 1 hour, the system tests the compressor start and stop and all other parameters three times.
  • System protection against low and high pressure: if the high or low pressure values in the system are exceeded, the Monoblock unit control board will warn about this with an audible signal and by displaying an error code, and if the pressure limit value is exceeded, the system will automatically shut down until the pressure stabilizes and restart the system.
  • System protection against excessive discharge and condensation temperatures: if the discharge and condensation temperatures are exceeded, the Monoblock unit control board will warn about this with an audible signal and by displaying an error code, and if the temperature limit value is exceeded, the system will automatically shut down until the temperature stabilizes and restart the system.
  • System protection against liquid refrigerant shock (water hammer): by monitoring the temperature difference in the system, the control board will stop the system to stabilize the temperatures.
  • Compressor protection against overheating: by monitoring the discharge temperature, when the value is reached, the compressor liquid cooling system will be turned on, which will ensure uninterrupted operation of the compressor under high system loads.
  • Compressor protection against low ambient temperatures: if the Monoblock unit is operated at low ambient temperatures, there is a risk of compressor oil thickening and proper lubrication of its parts. The compressor is equipped with an electric heater that will automatically heat the compressor oil when the ambient temperature values are reached.
  • Monoblock unit electrical power protection:
  • Phase loss protection (three-phase Monoblock unit)
  • Phase sequence error protection (three-phase Monoblock unit)
  • Three-phase imbalance protection (three-phase Monoblock unit)
  • High voltage protection
  • System blocking after three power errors.

Technical specifications

ModelBYGY-010-QXD-RZDPBYGY-015-QXD-RZDPBYGY-020-QXD-RZDPBYGY-03 0-QXD-RZDPBYGY-040-QXD-RZDP
Nominal Input ( W ) ①11201465202026103200
Power Supply220V 50/60 Hz
RefrigerantR404A or equivalent
Max Running Current (A) ②6.210.513.516.520.0
Evap.Temp (C)-40 ~ -5°C
Ambient Temp (C)-10 ~ +43°C
Basic configurationCompressor (Model)JXSD150Z312KXSD203Z312KXSD300Z312KXSD300Z312TXSD456Z312
CondenserStyleCopper tube fin condenser or microchannel condenser
Fam Motor(mm) Diameter*QuantityØ300*1Ø300*1Ø350*1Ø300*2Ø300*2
(m3/hr) Air Flow ③1800/20001800/20002500/28003600/40003600/4000
EvaporatorStyleCopper tube fin evaporator
Fam Motor(mm) Diameter*QuantityØ250*1Ø300*1Ø300*1Ø300*2Ø300*2
Mi(m3/hr) Air Flow ③1100/12501800/20001800/20003600/40003600/4000
Pressure Controller (Mpa)Diaphragm type high pressure switch /  Low pressure sensor
Accumulator/650cc1L
Reservoir2L (Bidirectional)
Sight Glass3/8″ (Ø9.52)
Oil ExtractorTDW-4808SBLR/A-W 55833
Filter Drier083S (Bidirectional)
Check ValveSR-06
Electronic Expanding ValveDPF(S1)1.0TDPF(TS1)1.3DPF(TS1)1.65
Liquid Injection Valve1/4″ (Ø6.35)
Four-way Valve ④SHF7SHF9
Defrosting Heating Element ④500W
Defrosting Heating Belt ④25W/m, 3m
Electric ControlTemperature ControllerEK-3030V
AC Contactor18/01
Air Switch2P NXB-63 D32
Button SwitchPassive switch for unit operation (Function switches such as cold storage lamp and cold storage door heating wire can be added.)
Variable      Frequency      ControlCompressor frequency control, Electronic expansion valve control, Condensing fan control, Evaporating fan control, Defrosting control, High and low pressure protection, Spray protection, Exhaust temperature protection, Current protection and Fault code output.
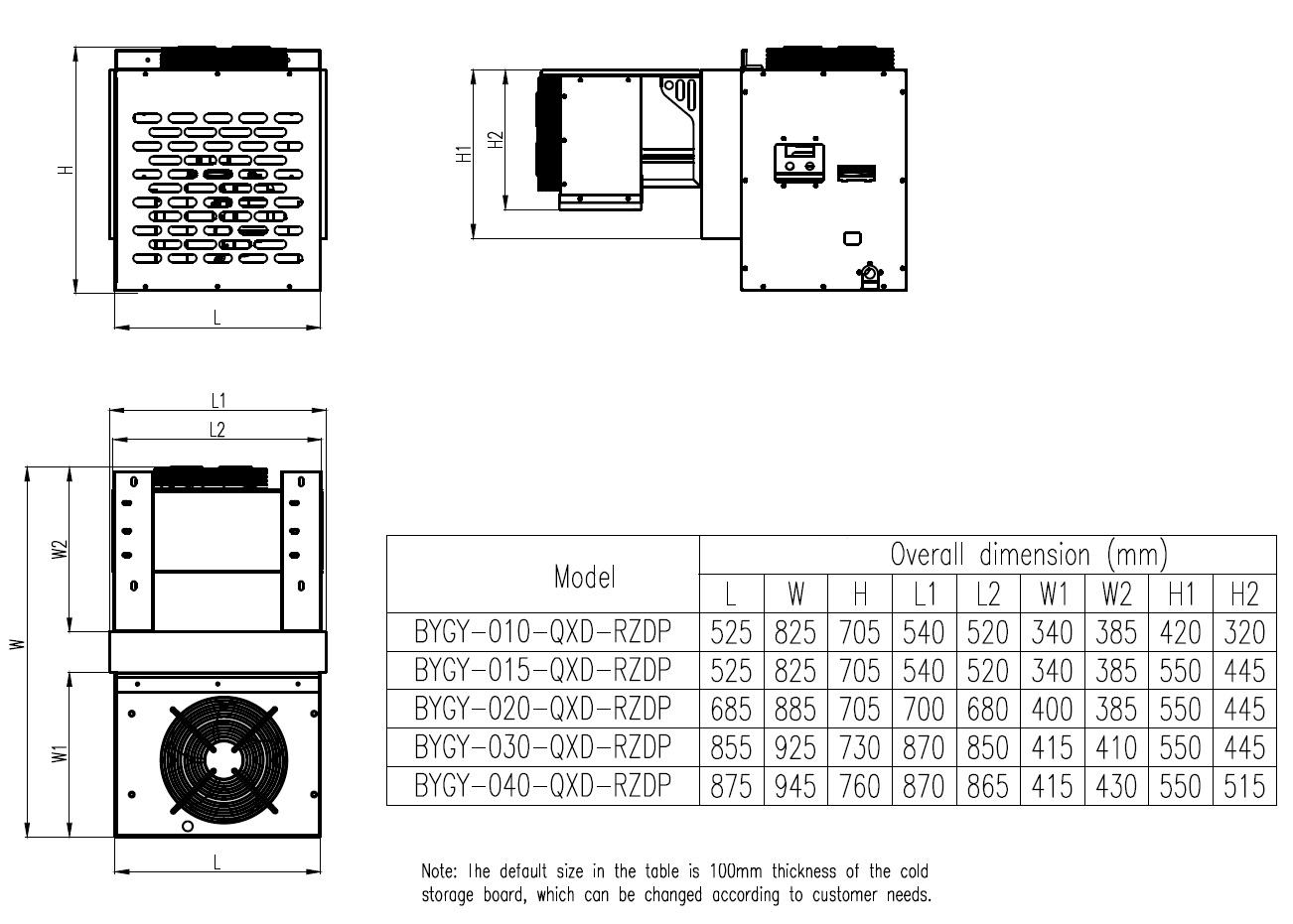
Dimension (mm)(mm) Length525685855875
(mm) Width825885925945
(mm) Height705730760
(R404A) Capacity (W)(C) Evap TempAmbient Temp:32C     Sub-cooled Temp:0C
-4059084099013651705
-357201040126016252115
-309101250148020602640
-2511501500175024853285
-2014101890225031004025
-1517002240275035504860
-1020002650330045255760
-523202950393054406790

①Represents the test conditions for the nominal cooling capacity;
②Represents the current under the maximum operating test conditions;
③Represents the air volume when the input power supply is 50Hz/60Hz;
④When the unit is applied to the refrigeration conditions, the four-way valve hot gas defrosting is used,
and the heating tube is used for auxiliary defrosting. The defrosting scheme can be selected as timed
defrosting or defrosting as required.
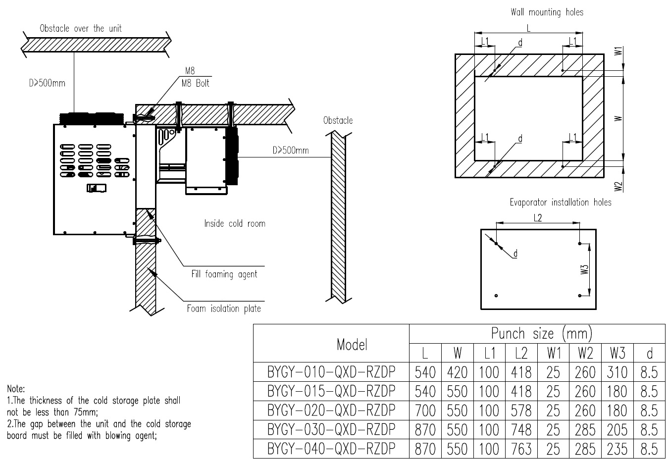
⑤The dimensions in the table are those of the all-in-one unit with a cold storage panel thickness of 100
mm.

(GB/T21363-2018) Test Condition

TESTATIONAMBIENT TEMP.EVAP. TEMP.TESTING POWER SUPPLY
STANDARD TEST CONDITIONS32C-7C220V 50Hz
OVERLOAD RUNNING43°C0C198V 50Hz

Dimensions

Download