Основною перевагою Моноблоків BOYADR є їх простий і швидкий монтаж та запуск (не потребує фахівців холодильного обладнання).
Потужність охолодження: 1 – 3 к.с.
Холодоагент: R404A/R448A/R449A/R454C та ін. за вашим запитом
Напруга: 1 фаза / 220 В / 50~60 Гц
| Модель | BYGY-010-QXD-RZDP | BYGY-015-QXD-RZDP | BYGY-020-QXD-RZDP | BYGY-030-QXD-RZDP |
BYGY-040-QXD-RZDP
|
|||
| Номінальна вхідна електрична потужність (Вт) (Т вип. – 7°С / Т зовн. +32°С) ① | 1250 | 1465 | 2000 | 2610 | 3200 | |||
| Електрична напруга | 220 В 50/60 Гц | |||||||
| Холодоагент | R448A/R449A/R454C/R404A/R507A | |||||||
| Максимальний пусковий струм (А) ② | 6,2 | 10,5 | 13,5 | 16,5 | 20,0 | |||
| Температура випаровування (°С) | -40 ~ -5°С | |||||||
| Температура навколишнього середовища (°С) | -10 ~ 43°С | |||||||
|
Базова конфігурація
|
Компресор (модель) | JXSD150Z312 | KXSD203Z312 | KXSD300Z312 | KXSD300Z312 | TXSD456Z312 | ||
|
Конденсатор
|
Специфікація | Мідний трубчастий ребристий конденсатор або мікроканальний конденсатор | ||||||
|
Вентилятор
|
Діаметр*Кількість (мм) | φ300*1 | φ300*1 | φ350*1 | φ300*2 | φ300*2 | ||
| Потік повітря (м3/год) ③ | 1800/2000 | 1800/2000 | 2500/2800 | 3600/4000 | 3600/4000 | |||
|
Випарник
|
Специфікація | Мідний трубчастий ребристий конденсатор | ||||||
|
Вентилятор
|
Діаметр*Кількість (мм) | φ250*1 | φ300*1 | φ300*1 | φ300*2 | φ300*2 | ||
| Потік повітря (м3/год) ③ | 1100/1250 | 1800/2000 | 1800/2000 | 3600/4000 | 3600/4000 | |||
| Контролер тиску (МПа) | Мембранний реле високого тиску / датчик низького тиску | |||||||
| Відділювач рідини | — | 0,65 л. | 1 л. | |||||
| Ресивер | 2 л. (двонаправленний) | |||||||
| Індикатор вологості | 3/8 дюйма (φ9,52) | |||||||
| Відділювач масла | TDW-4808S | BLR/A-W 55833 | ||||||
| Фільтр осушувач | 083S (двонаправленний) | |||||||
| Зворотній клапан | SR-06 | |||||||
| Електронний розширювальний вентиль | DPF(TS1)1.0 | DPF (TS1) 1.3 | DPF(TS1)1.65 | |||||
| Клапан впорскування рідини | 1/4 дюйма (φ6,35) | |||||||
| Чотирьох ходовий клапан ④ | SHF7 | SHF9 | ||||||
| Розморожувальний нагрівальний елемент ④ | 550 Вт | |||||||
| Розморожувальний нагрівальний пояс ④ | 25 Вт/м. 3 м. | |||||||
|
Електричне керування
|
Контролер температури | ЕК-3030V | ||||||
| Контактор змінного струму | 18/01 | |||||||
| Частотне регулювання | Регулювання частоти компресора, Регулювання електронним розширювальним клапаном, Регулювання вентилятором конденсатора, Регулювання вентилятором випарника, Регулювання розморожуванням. Захист від високого та низького тиску, захист від розбризкування, захист від перегріву, захист від струму та виведення кодів несправностей. |
|||||||
|
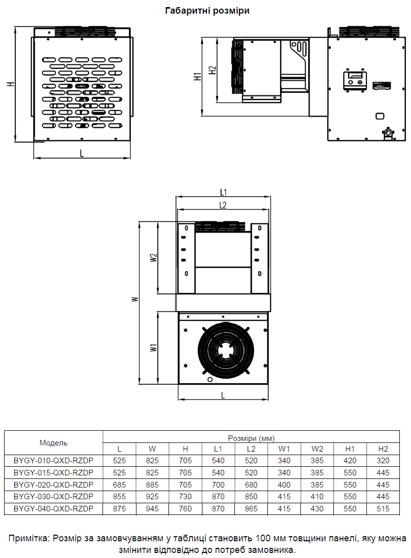
Розмір (мм)
|
Довжина (мм) | 525 | 685 | 855 | 875 | |||
| Ширина (мм) | 825 | 885 | 925 | 945 | ||||
| Висота (мм) | 705 | 730 | 730 | |||||
|
(R454C / R404A) Холодо- продуктивність (Вт)
|
Температура випаровування (°С) | Температура навколишнього середовища: 32°С, Переохолодження 0°С | ||||||
| -40 | 590 | 840 | 990 | 1365 | 1705 | |||
| -35 | 720 | 1040 | 1260 | 1625 | 2115 | |||
| -30 | 910 | 1250 | 1480 | 2060 | 2640 | |||
| -25 | 1150 | 1500 | 1750 | 2485 | 3285 | |||
| -20 | 1410 | 1890 | 2250 | 3100 | 4025 | |||
| -15 | 1700 | 2240 | 2750 | 3550 | 4860 | |||
| -10 | 2000 | 2650 | 3300 | 4525 | 5760 | |||
| -5 | 2320 | 2950 | 3930 | 5440 | 6790 | |||
① Представляє умови випробування для вхідної номінальної електричної потужність;
② Представляє струм за максимальних робочих умов випробування;
③ Представляє об’єм повітря, коли вхідне живлення становить 50 Гц/60 Гц;
④ Коли пристрій застосовується до умов охолодження, використовується розморожування гарячим газом за допомогою чотириходового клапана, а нагрівальна трубка використовується для допоміжного розморожування. Схему розморожування можна вибрати як розморожування за часом або розморожування за потреби.
⑤ Розміри в таблиці наведено для універсального пристрою з товщиною панелі 100 мм.
(GB/T21363-2018) Умови випробування
|
ВИПРОБУВАННЯ |
ЗОВН. ТЕМП. |
ТЕМП. ВИПАРОВ, |
ТЕСТУВАННЯ ДЖЕРЕЛА ЖИВЛЕННЯ |
|
СТАНДАРТНІ УМОВИ ВИПРОБУВАННЯ |
32°C |
-7°C |
220В 50Гц |
|
ВИПРОБУВАННЯ З ПЕРЕВАНТАЖЕННЯМ |
43°C |
0C |
198В 50Гц |